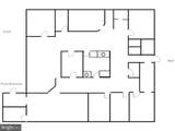
Description
Office condo in bustling area of the medical community consisting of 2421 SF in medical office complex. Floor plan allows for flexibility for medical or non-medical use. Large waiting area adjacent to reception area. Racetrack floor plan allows for maximum flexibility. 3 baths and kitchenette.
-
0BEDS
-
N/AACRES
-
0BATHS
-
01/2 BATHS
Description
Office condo in bustling area of the medical community consisting of 2421 SF in medical office complex. Floor plan allows for flexibility for medical or non-medical use. Large waiting area adjacent to reception area. Racetrack floor plan allows for maximum flexibility. 3 baths and kitchenette.
©2026 Bright MLS, All Rights Reserved. IDX information is provided exclusively for consumers' personal, non-commercial use and may not be used for any purpose other than to identify prospective properties consumers may be interested in purchasing. Some properties which appear for sale may no longer be available because they are for instance, under contract, sold, or are no longer being offered for sale. Information is deemed reliable but is not guaranteed accurate by the MLS or The Lisa Mathena Group. Some real estate firms do not participate in IDX and their listings do not appear on this website. Some properties listed with participating firms do not appear on this website at the request of the seller. Data last updated: 2026-02-09T23:51:29.75.
